1.238
1.337
1.418
1.599
1.st1
2.st3

Mājas projekts Arhipro 2-147

Array

Projekta īss apraksts

Guļamistabas:3 Platība: 147 m² Garāža: nav


Email

Divstāvu ģimenes māja ar terasi zem pergolas.
Mājā ir plaša viesistaba apvienota ar virtuvi un trīs guļamistabas otrajā stāvā.
Dotajam projektam nav paredzēta garāža, bet plānojums atļauj piebūvēt garāžu vai nojumi automašīnai.

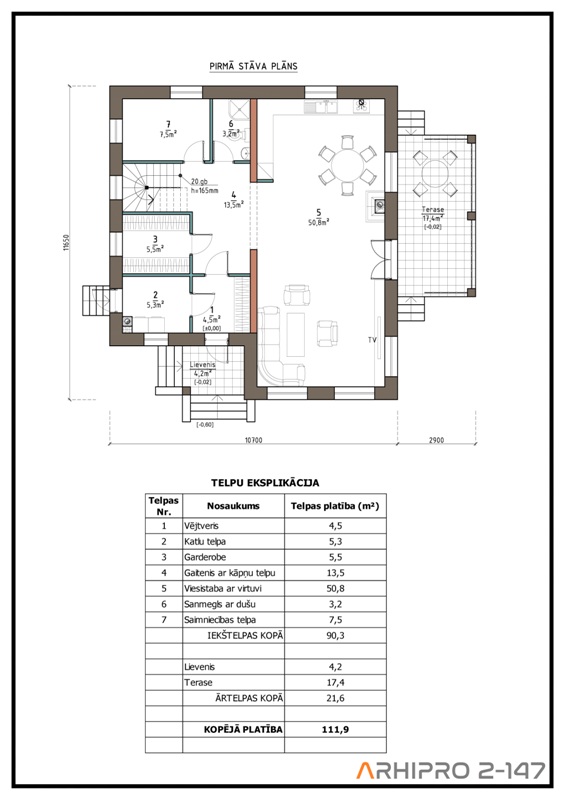
Iekštelpu platība - 147,0m²
Kopējā platība - 168,6m²

KONSTRUKTĪVĀS ĪPAŠĪBAS:
•Pamati – lentveida, no monolīta dz/b.
•Ēkas ārsienas – gāzbetona mūris AEROC EcoTerm 375mm. Ārsienas papildus siltinātas ar minerālvati 100mm.
•Ēkas norobežojošās starpsienas – metāla karkasa/rīģipša konstrukcija, var aizstāt ar gāzbetona mūri 100mm.
•Logi – pakešu logi koka vai PVC rāmjos ar trīskārša stiklojuma paketi.
•Pārsegumi – dz/b paneļi.
•Jumta konstrukcija – koka karkass.
•Jumta segums – metāla profilētie dakstiņi.


+371 20144444

info@arhipro.lv
Adrese: Nākotnes iela 2,
Ķekava, Ķekavas nov., LV-2123
© 2025 All Rights Reserved. Arhipro